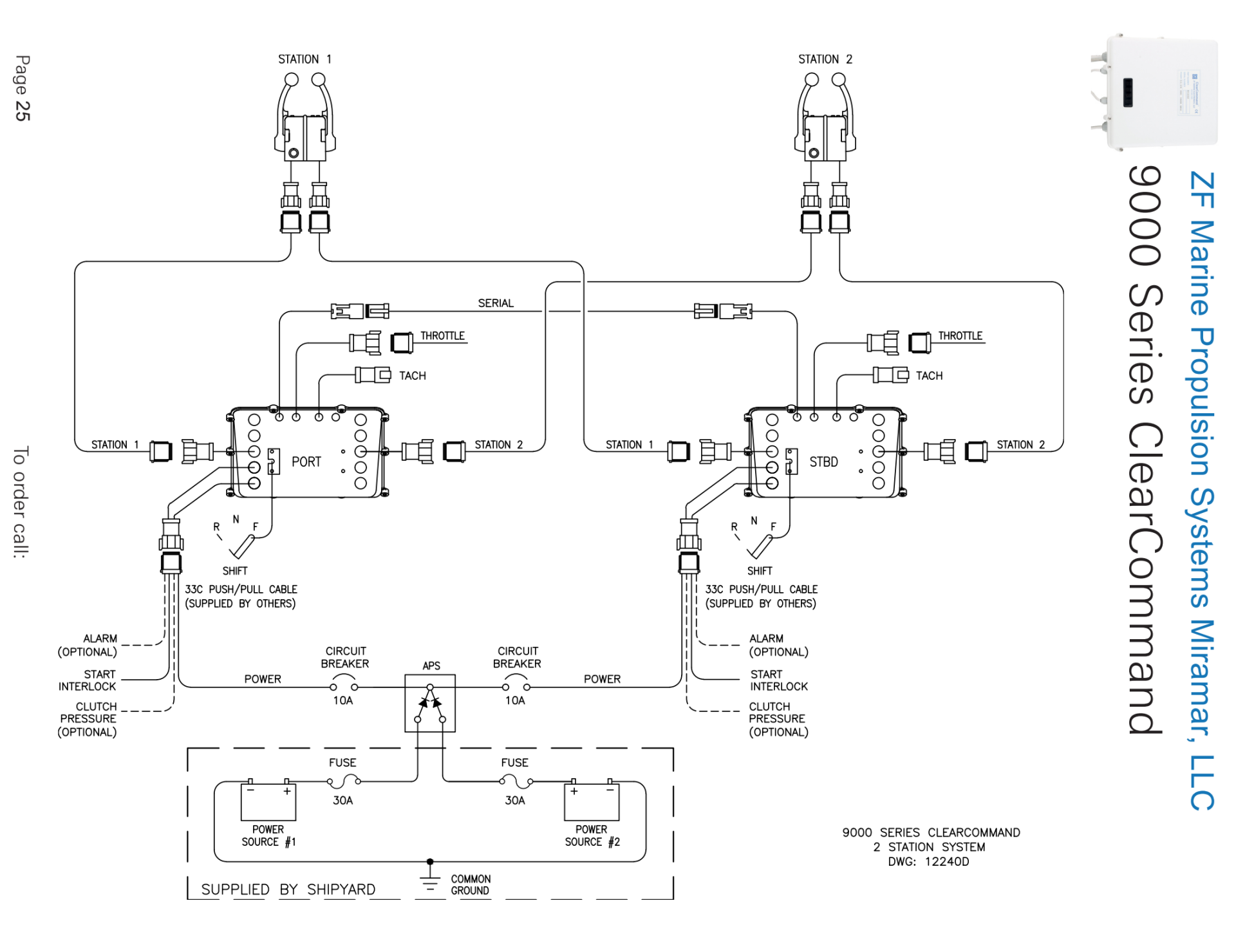
Descripción
La serie 9000 mejorada de ClearCommand de ZF Mathers es un control robusto que se ha establecido durante mucho tiempo como un estándar de la industria en tecnología de control electrónico. El ClearCommand es adecuado para todas las aplicaciones que utilizan motores y engranajes mecánicos o controlados electrónicamente con cualquier combinación de acelerador o cambio electrónico.
El 9000 ClearCommand ha sido probado según los requisitos establecidos por sociedades de inspección como ABS y DNV, y cumple con los estándares ABYC para pruebas funcionales y de rendimiento. Lleva la marca CE y está certificado para su venta en Europa.








